Rosebery Halls Refectory, LSE, Islington, London

The refurbishment of the Ground and Lower Ground floor of Rosebery Halls student Residential accommodation in Clerkenwell. The tired and disfunctional space was in need of a well overdue refresh and enhancement together with new catering, wc’s and student space.

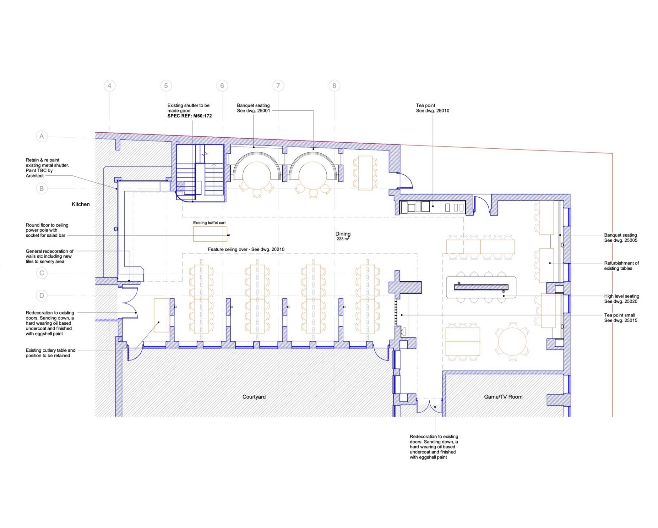
The proposal included the strip out of all existing end of life building ‘fabric’ (incl. ceilings, joinery, materials generally) with a new refreshed look and feel achieved by an injection of simple colour, a palette of natural and sustainable materials, new AV and IT. Rock Townsend designed bespoke joinery to accommodate a range of activities, including: perching benches for short term dwell times, different types of large and small banquette seating for group activities and to enhance the need for the community feel, and larger tables for more formal dining/ group working. Kitchenette self-service refresh points were introduced to provide multiple food and refreshment offers.


Description: Refurbishment of student halls refectory

Client: The London School of Economics & Political Science

Floor Area: 270 SqM

Project Value: £1.2m

Status: completed 2023

RT Team: Tim Robinson, Peter Phillipps, Mark Gabbey


Previous
Previous

The Quad - The Strand Campus, King’s College

Next
Next

Future Classrooms, University of Westminster