South Bank Colleges, Blocks A, Clapham Campus, Clapham Common

As part of a wider estate strategy, South Bank Colleges identified the need for a new c.5,400m² GIA gateway building at its Clapham campus. The project consolidates dispersed provision into a single, purpose-built facility designed to support both young people and adult learners who have not thrived in mainstream education, including those for whom English is a second language.

Courtyard view towards new extension
Site Plan
Axonometic view of refurbished and new extension

The rationalisation of the campus enables the release of surplus land, helping to fund the Gateway Centre and future development at the nearby Nine Elms campus. The building brings together core teaching spaces for English and Maths with specialist facilities for Art, Dance and Catering, alongside dedicated alternative provision for younger learners. These are supported by a range of shared amenities, including a refectory/café, flexible hub spaces and a Learning Resource Centre.

The proposals were developed through close collaboration with the client, consultant team, planning advisors and the London Borough of Lambeth, ensuring a coordinated and contextually responsive design.

The brief called for a high-quality, future-focused education facility that would:

  • Deliver a c.5,400m² gateway building

  • Provide inclusive, high-quality teaching, learning and amenity spaces

  • Enhance the surrounding urban environment

  • Respond sensitively to context, including massing, heritage and environmental considerations

  • Embed sustainability through reuse, reduced embodied carbon and low-energy design

  • Optimise site utilisation by replacing a redundant sports hall with new academic space

  • Enable future masterplan development while maximising site value

  • Meet planning policy and design guidance requirements

The project was delivered to an accelerated programme, completing RIBA Stages 1–4 within seven months to secure Department for Education funding, supported by a multidisciplinary team of 15 consultants through to planning submission and Employer’s Requirements.

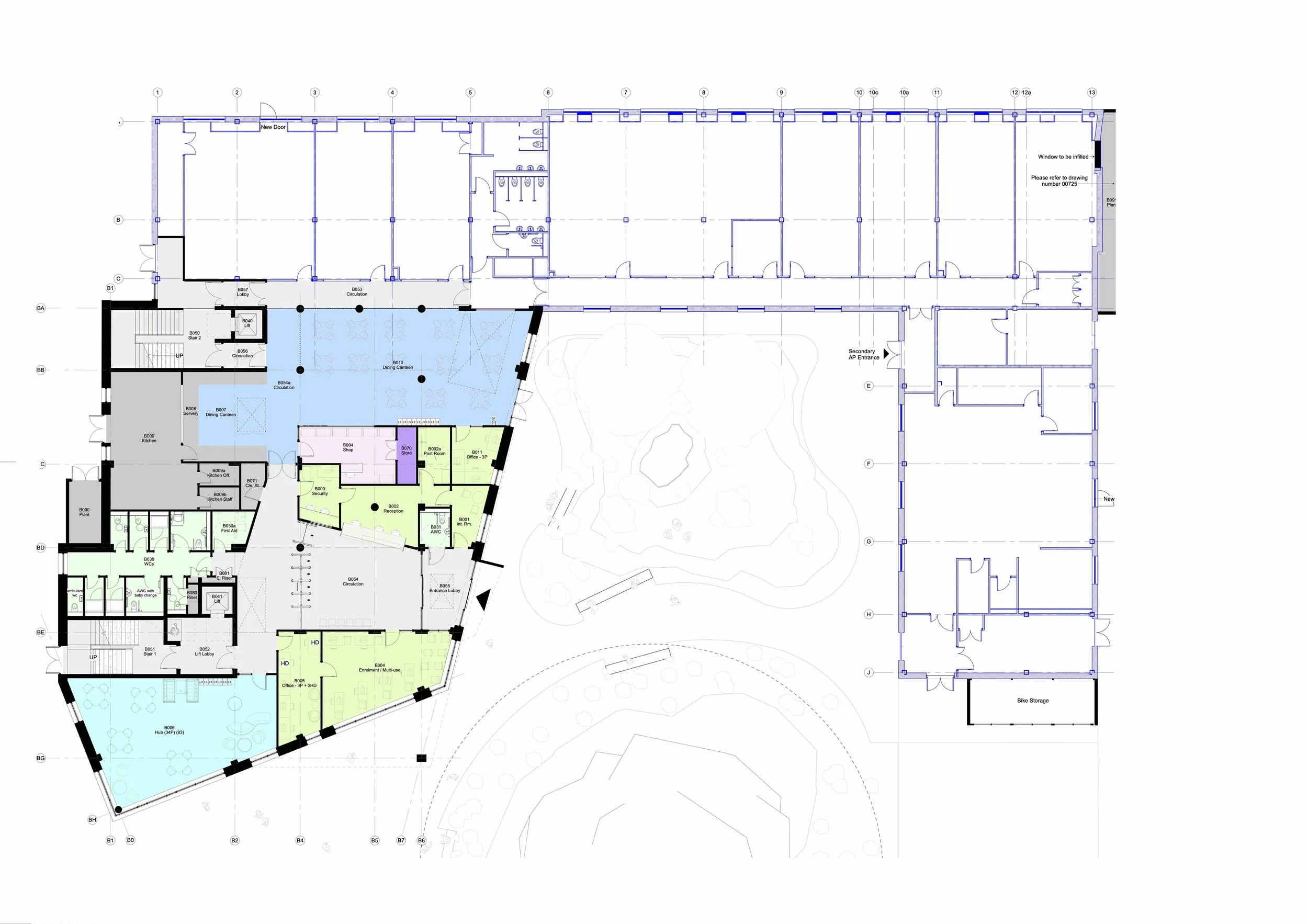
Ground floor Plan Layout
Ground floor layout
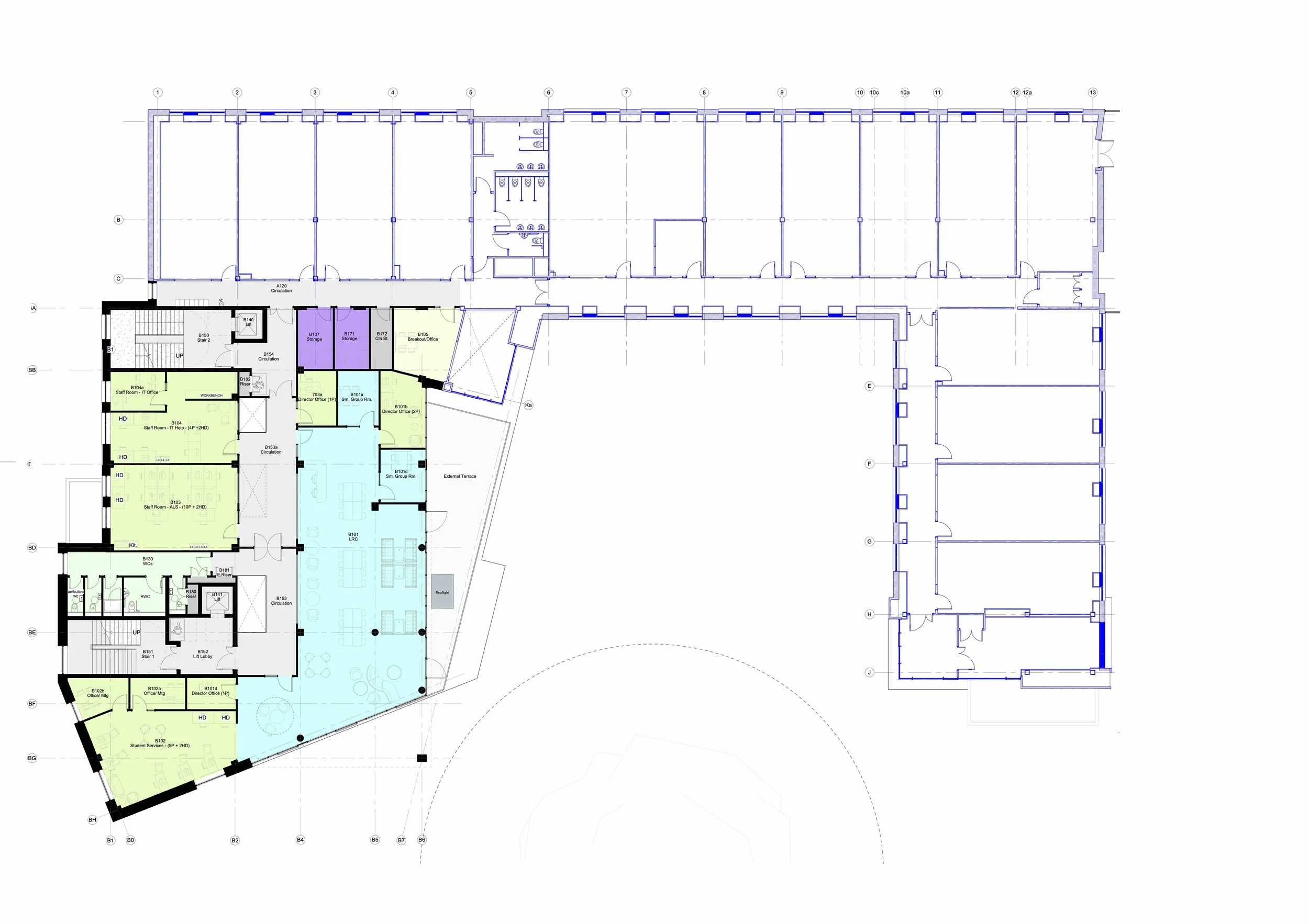
Typical Upper floor Plan Layout
Typical upper floor layout
Third Floor Plan Layout
Third floor layout
North west elevation
North west elevation
North east elevation
North east elevation
south west elevation
South west elevation
south east elevation
South east elevation
courtyard view of the new extension block

The building’s design and organisation are carefully planned to optimise spatial adjacencies, responding directly to patterns of occupancy and the operational demands of the college timetable.

  • Ground Floor: Main entrance, refectory/café and shared social spaces linked to the courtyard

  • First Floor: Learning Resource Centre, student support services, administrative offices and terrace access

  • Second Floor: General teaching classrooms, student hub, contemplation room and leadership offices

  • Third Floor: Specialist teaching spaces for Dance, Art & Design and Catering, alongside flexible learning and multi-use areas with terrace access

Targeting BREEAM ‘Excellent’, the scheme adopts a low-carbon strategy centred on the reuse of existing structures combined with a highly efficient new-build extension of approximately 3,000m². Operational energy is reduced through the introduction of photovoltaic panels and a transition from gas boilers to air source heat pumps.

The new building is carefully integrated to preserve and enhance the existing landscaped courtyard, maintaining it as a key amenity space. Green roofs support biodiversity and planning objectives, while improved ground-level landscaping creates clear, accessible routes, ensuring intuitive and efficient movement across the campus.

The gateway building establishes a cohesive, inclusive and sustainable learning environment—supporting diverse educational pathways while unlocking long-term value for the wider campus.

Materials palette
Materials palette
Facade study
Facade and materials study
Courtyard approach
Courtyard view 2
sketch view

Description: Collage building to support learners outside mainstream education providing classrooms and specialist spaces.

Client: South Bank Colleges (Part of the LSBU Group).

GIA: 5,4000 SM (incl. 3,000 SM refurbishment)

Value: £15m

Architect, Lead designer, PD (BSA) & CDM: Rock Townsend

Planning: Lichfields

Structures & Civils: Eckersley O’ Callaghan

MEP: Troup Bywaters & Anders

Fire Engineering: WSP

Sustainability: Eight Versa

Landscape: WWA

Status: Stage 4 Spring 2026

RT Team: Mark Gabbey, Richard Sharp, Peter Phillipps, Kiran Milton, Lorenzo La Magna, Oli Rash.

Courtyard view

Next
Next

South Bank Colleges, Block B, Nine Elms Campus