Holy Trinity Primary School & Vibe Development, Dalston

What started in 2009 as a funded expansion of a one form entry primary school was subject to funding cuts and eventually required an alternative financial model to deliver the additional 210 pupil places. The success of the resulting solution is testament to a design team that asked ‘what if?’ and a client who was willing to ask themselves ‘what if we do?’

Beechwood Road view of pre-school playground and main entrance
Location Plan
Beechwood Road view of main entrance framed in gold cladding
dark grey brick boundary wall, mottled buff brick school and stone clad residential parts

Our early iterations in the design process involved allocating part of the site for residential development, an increasingly common cross-subsidy approach, however the compromises were unacceptable to both the operation of the school and the desirability of the development and apartments.

We then proposed a radically different strategy. By vertically stacking the residential above the school and then separating them with an double-height play deck, the school could occupy the majority of the existing site, thereby maintaining its presence and individual identity within the community, increase the amount of outside space available and maximise land value through an ‘air-rights’ development.

This shift in thinking resulted in more generous and better organised classrooms and facilities, an increase of more than 60% in outside space for learning, play and sports and an improved cross-subsidy with the number of apartments increasing from 30 to over 100. It also reflected the changing nature of Dalston Square, completing the fourth quarter with a form and mass more appropriate to the Squares new character of mid-rise, mid-density.

The design approach to delivering additional school spaces and homes was unconventional but pragmatic in a dense urban context. Comprising 101 apartments above a new two-form entry primary school, and separated by a double-height, open-air play-deck, a bold metropolitan piece of architecture was born.

A key challenge in designing a mixed-use, cross-subsidy development of this nature was to ensure that the operational needs of the school were protected, avoiding any restrictions to the school activities, accessibility, flexibility and security. Equally, it was important to ensure the residential development was viable, desirable and aspirational to fulfil the vision.

West Elevation - Dalston Square
west elevation
Drawing - Cross Section
cross section
vertical circulation and gallery
main entrance and foyer area
vertical circulation and gallery space
Key Stage 1 classrooms and outdoor play areas
Key Stage 1 classrooms and outdoor play areas
Key Stage 1 classrooms
main school hall and dining space

The success of this specific solution resulted from a thorough process of pre-contract design exploration, considering multiple options, responding to stakeholder feedback to build support and then develop detailed proposals to secure the design and performance specification for the school prior to procurement.

RT led an extensive programme of engagement with the Local Planning Authority, Hackney Design Review Panel and local residents, building support for the unconventional that had no precedents to refer to. Convincing stakeholders that such a bold idea could become a reality required detailed knowledge of both school and residential design as well as trust between all parties, in order to challenge preconceptions.

This process culminated in the appointment of developer Telford Homes Plc in the Summer of 2012 to finalise Stage 3 design and the planning application process. By integrating the different uses it was crucial that we built on our existing primary school experience and our residential and development knowledge to understand how a mixed-use school design could work best.

Every element of the design needed to be tested. It provoked a real examination of how this primary school would operate, what would be required, where and when; and how the interface between the school and residential could be designed such that they were separate in use yet integrated to deliver a cohesive design.

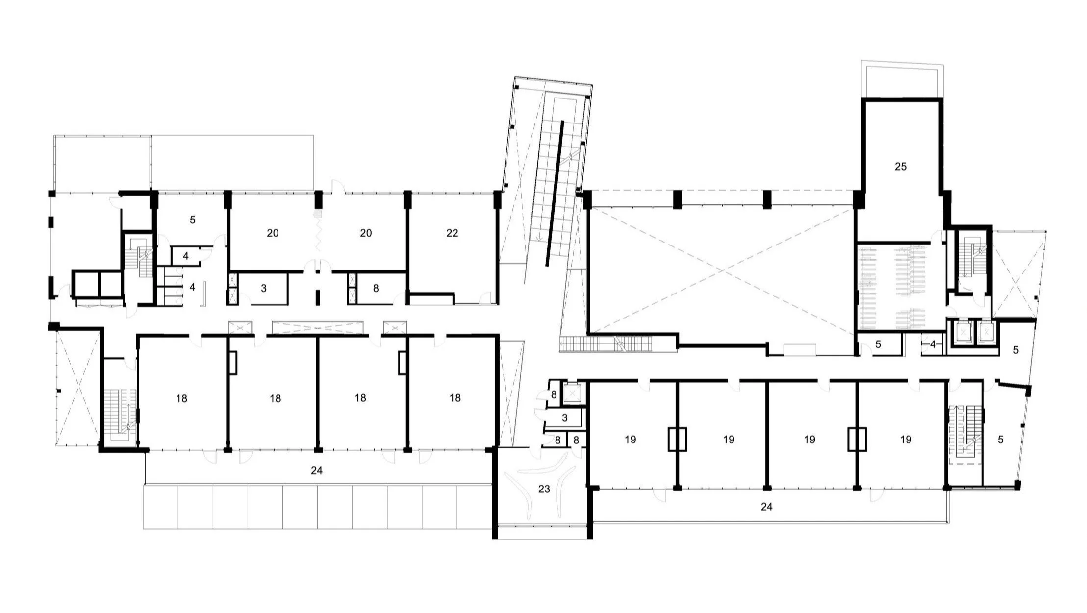
Residential entrances and circulation cores were located at each end of the building, the space in-between provided maximum flexibility for the layout of the school. The school is arranged with the main entrances located at the centre of the plan where the vertical circulation intersects the horizontal north-south corridors. Classrooms, hall, offices and other spaces are arranged off the central corridors whilst the vertical circulation connects through to the second floor play-deck and MUGA.

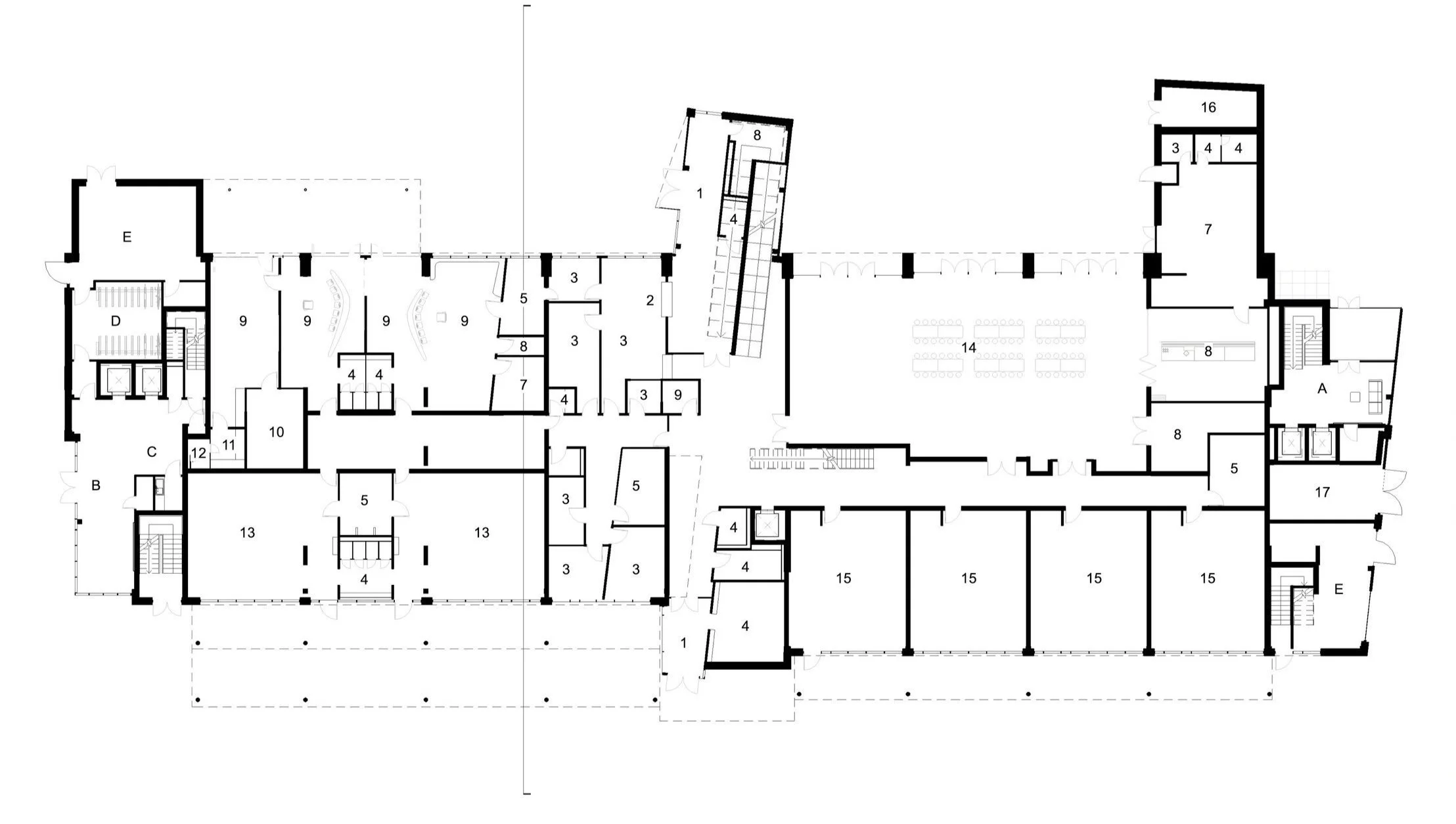
Early Learning is both integral yet independent of the primary school, with its own playground serving each of the Early Years rooms. Key Stage 1 (KS1) classrooms are located across the corridor at ground level with each classroom directly opening onto a covered outdoor space, providing all weather teaching and play. Key Stage 2 (KS2) classrooms and staff offices are located at first floor, each with generous outside balcony space.

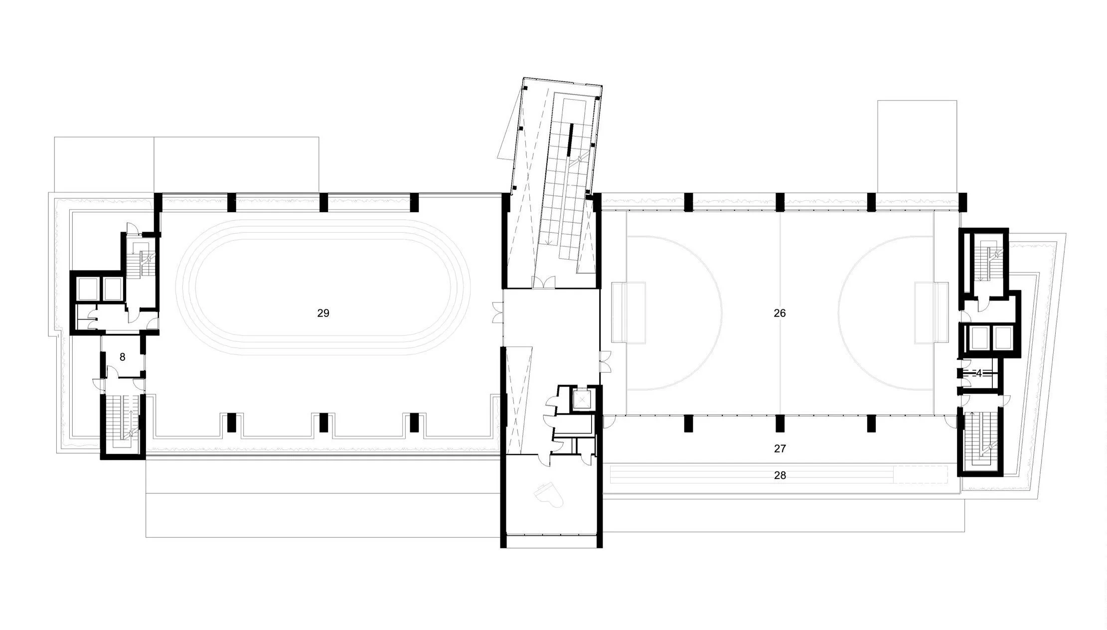
The second-floor play-deck with a MUGA, running tracks, playground, climbing wall and stage provides substantial outside space often lost in urban locations. The arrangement of the play-deck, as well as of the dining hall and kitchen, are such that each can be used independently of the school for community use with their own access and ancillary facilities.

The residential apartments sit above the play-deck. Arranged over fourth to tenth floors, they each capture a different view of London, culminating in a communal roof garden with panoramic views of the entire city.

Bringing this mix of uses onto one site presented opportunity to reduce the on-going environmental impact of building operation. The predominantly day-time use of the school combined combined with predominantly night-time occupation of the homes enables the on-site Combined Heat and Power (CHP) plant to work efficiently complimenting each other and feeding surplus power back into the grid.

main school hall and dining space
Key Stage 1 classrooms
state of the art tech classrooms
Early learning classrooms
skylights and circulation voids bring natural lighting through to the central circulation space

“The design for the School evolved over a period of 3 years as the architects wanted to provide everything on the School’s wish list. The play/sports deck caught everyone’s imagination once the idea was floated.”

— Inigo Woolf - Chief Executive, LDBS

Ground Floor Plan Layout
ground floor plan - nursery and KS1
First Floor Plan Layout
first floor plan - KS2
Second Floor Plan Layout
second floor plan - playdeck
Second floor play deck with sports facilities including running track
views out east from the second floor deck area to the original Holy Trinity church
views west of the wider Dalston Square redevelopment
second floor MUGA space with undulating timber clad ceiling
100m running track located at the second floor roof deck area

“A perfectly genius proposal. The design for the redevelopment of Holy Trinity School is pioneering and cleverly tackles the need to provide more housing and more primary school places.”

— Boris Johnson, Mayor of London

View from Dalston Square with school at ground and first, playdeck at second floor and residential at 4th to 10th floor

The development strategy for Holy Trinity was predicated upon the residential component generating sufficient value to cover the cost of the entire development, such that the school was delivered in lieu of a capital receipt for the land or public subsidy. Crucial to this was understanding development and incorporating suitable profit margins to attract prospective developer partners through a competitive tender process.

With the freehold land retained by the Diocese, the final development agreement enabled the delivery of an exceptionally high-quality school building, a long-term ground rent income from the residential apartments above and, through the provision of an overage agreement, provided a shared recovery between the Diocese and the Local Authority of enhanced values and any additional ‘surpluses’ for investment back into the local community, education and affordable housing within the Borough.

This financial ‘win-win’ formula together with the commitment, passion and energy of the senior leadership team, teachers, pupils and parents has delivered an exemplar school and, perhaps more importantly, a wider social impact of raising aspirations with the ability to achieve them.

Looking forward to the financial sustainability of the school, the design is such that the school can generate additional income from the enhanced facilities. Incorporating lessons from our work within the Higher Education sector and its drive for third stream funding, we invested time into exploring how the new facilities could work independently of the school to generate new revenue streams. Through private or community-hire of the hall, kitchen and MUGA for functions and sports activities, this forward thinking means that additional income is now available and places Holy Trinity revenue funding on an even better financial footing.

metallic god cladding articulates the music room and library space while signally the secondary entrance to Dalston Square

“The decks offer the most compelling precedents for how schools can exploit London’s housing boom to embed themselves into the limited space offered by the capital’s dense inner city context.”

— Ike Ijeh - Building Magazine

view north towards Dalston Square with micro-farm and landscaped playground for Key Stage 1
matallic gold cladding articulate teh secondary entrance and houses the library and music room

Description: 2FE Primary School with 101 one, two and three bedroom apartments.

Client: Holy Trinity CofE Primary School, London Diocese Board of Schools & LB. Hackney & Telford Homes Plc

Floor Area: 12,810 sqm - Residential 3,260 sqm; Education 9,550

Value: £28m

Status: completed October 2016

Architect (Stage 0-4a): Rock Townsend

Architect (Stage 4b-7): Stockwool

Planning Consultant: CMA Planning

Landscape Arch.: Standerwick Design

Transport: Caneparo Associates

RT Team: Alistair Hay, James Ford, Mark Gabbey, Phil Rogers & Richard Sharp.

view of main entrance from pre-school playround
Previous
Previous

Belvue School, Rowdell Road, Northolt.

Next
Next

St Jerome Primary School, Harrow