Chelsea Library, Kings Road, London. SW3

Chelsea Town Hall and Library, designed by architect Leonard Stokes, was constructed between 1906 and 1918. This late Victorian two-story building received Grade II listing in 1969 for its architectural quality, featuring a significant external façade with red brick, stone, and a granite plinth, pedimented Roman Ionic columns, stone architraves, aprons, and cornices.

Victorian library building, predominantly stone with red brick panels.
Gallery and circulation route with arched vaulted ceiling, terrazzo floor and deep recessed windows
view of refurbished meeting room. a selection of  chaira arranged around a white meeting table.
restored hardwood finishes, new furniture and mechanical and electrical fit-out
restored hardwood finishes, new furniture and mechanical and electrical fit out

Rock Townsend was appointed as Lead Consultant by the Royal Borough of Kensington and Chelsea (RBKC) to provide a multi-disciplinary team, including experts in heritage, architecture, project design, cost management, project management, MEP, and structural engineering. The team was tasked with assessing the capacity and potential for repurposing Chelsea Library and Brompton Library.

Working closely with RBKC’s Project Manager, Libraries team, and local Planning and Heritage officers, Rock Townsend explored and tested the feasibility of adapting and refurbishing the buildings to meet the client's requirements. Following the development of three costed feasibility options for each library, the team was appointed to progress the agreed option from RIBA Stage 2 through to Stage 7, supporting the client through the tendering process and the construction phase, with a successful handover in Q4 2022.

The core brief aimed to increase library utilization and provide additional flexibility for various uses. The scheme focused on four main areas of improvement:

New flexible meeting and event spaces were created, incorporating refreshment facilities to maximize use and commercial opportunities.

Enhancements were made to future-proof and improve the existing office space, generating additional third-party income – The Workery.

Improved display lighting, increased capacity for larger community exhibitions, additional display furniture, and adaptable wall space solutions for larger paintings and displays were provided within the gallery space

Existing restrooms were upgraded for better accessibility, functionality, and aesthetics. Back-of-house support spaces were also upgraded, incorporating additional storage to allow maximum flexibility for various activities and space arrangements.

The refurbishment included restoring original features, incorporating new finishes, and updating data, power, mechanical systems, and lighting in accordance with the building’s listed status. New power and data systems were installed to support additional technology and customer demands for ‘bring your own device’ capabilities, in collaboration with the Council’s IT department.

restored hardwood door frame
restored hardwood finishes, new furniture and mechanical and electrical fitout
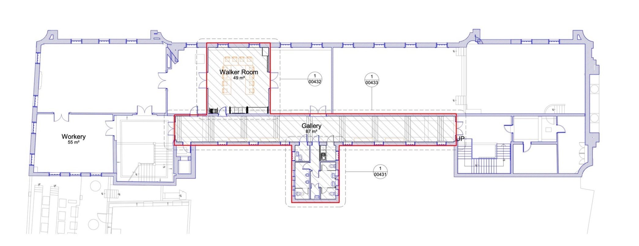
First Floor Plan Layout
First floor layout

Description: Grade II Library refurbishment and adaptation to wider uses

Client: Royal Borough of Kensington and Chelsea

Area: 1,500SqM

Value: £350,000

Fit-out contractor: ME Construction Ltd

Architect St 0-6: Rock Townsend

Principal Designer: Rock Townsend

Rock Townsend sub-consultant team:

·         MEP Eng.: CBG

·         Cost Consultant: FBR

Completed: November 2022.

RT Team: Mark Gabbey, Tim Robinson, Wajiha Dadabhoy

View or the Victorian library from Kings Road

Previous
Previous

Mill Road Community Centre, Cambridge

Next
Next

Soho Poly Theatre, University of Westminster